Kantoor - Te huur - PLANT 1 - Antwerpen
Michiganstraat 1, 2030 Antwerpen
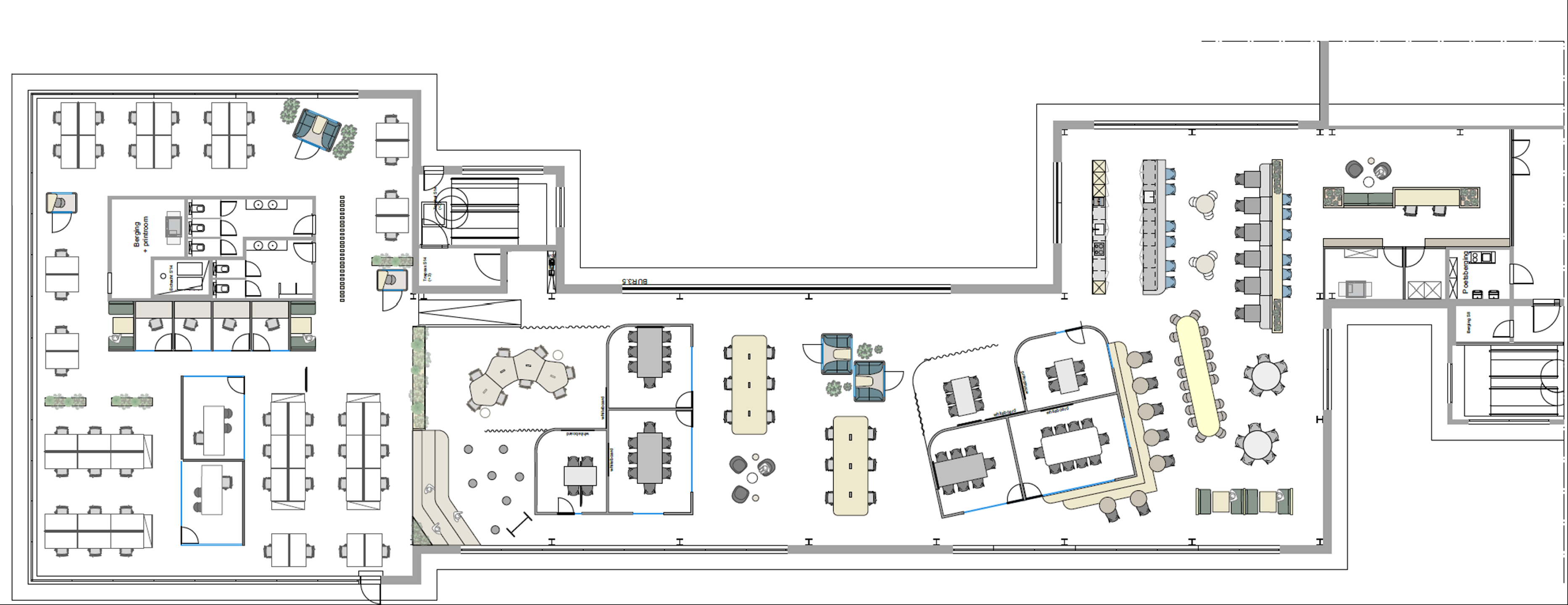
Plant 1 aan de Michiganstraat in Antwerpen is een opvallend nieuw kantorencomplex op de voormalige General Motors-site. Het gebouw combineert industriële historie met moderne architectuur en biedt lichte, ruime werkplekken met plafondhoogtes tot 6 meter en panoramisch uitzicht over stad en haven. De ruimtes worden open office en op maat afgewerkt.
De locatie langs de Noorderlaan garandeert een uitstekende bereikbaarheid, zowel via de Antwerpse Ring en de snelwegen als met tram, bus en trein. Ook beschikt het gebouw over een ruime eigen parking met maar liefst 133 binnenparkeerplaatsen.
Met flexibele kantoorruimtes van 215 tot meer dan 2.300 m², duurzame voorzieningen zoals groendaken en zonnepanelen en een moderne technische uitrusting biedt Plant 1 een comfortabele en toekomstgerichte werkomgeving. Het geheel maakt deel uit van een bruisende site met onder meer een restaurant en Europa’s grootste indoor e-kartingbaan, waardoor werk en ontspanning hier moeiteloos samenkomen.
Beschikbaar vanaf Q3 2025.

AFRIT
BUS
TREIN
TRAM
VELOSTATION