Kantoor - Te huur - KIPDORP 23 - Antwerpen
Kipdorp 23, 2000 Antwerpen
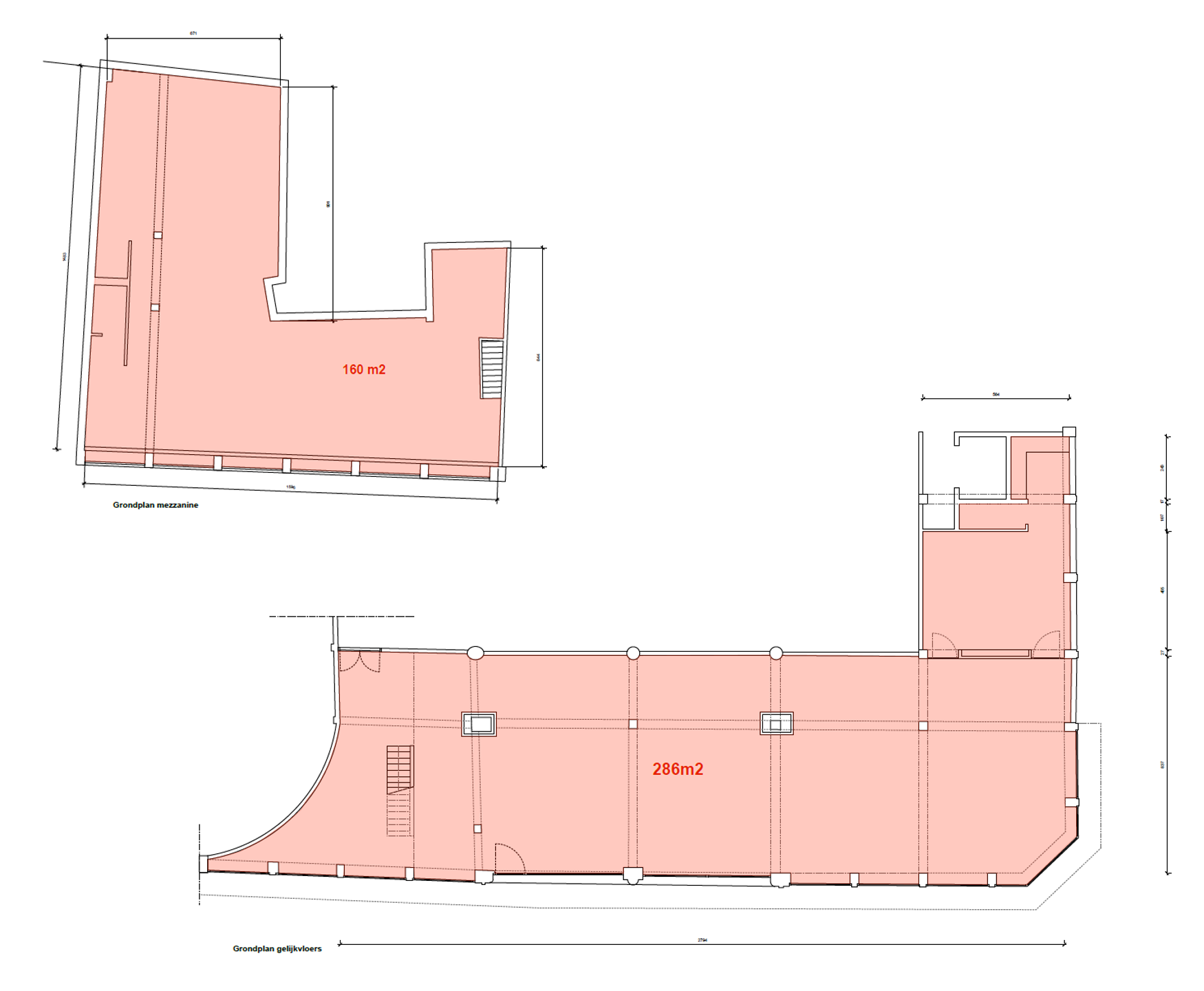
Dit kantoor/showroom beschikt over een grondoppervlakte van 286 m² en een mezzanine van 160 m². Het pand is gelegen in het historische hart van Antwerpen en biedt daardoor een uitstekende bereikbaarheid met het openbaar vervoer (bus, tram, Velo).
De showroom is volledig gerenoveerd, waarbij authentieke elementen zorgvuldig bewaard zijn gebleven. Dankzij de 30 meter lange etalageramen geniet het pand van een overvloed aan natuurlijk licht. Daarnaast is er een kitchenette met aangrenzend sanitair aanwezig voor extra gebruiksgemak.
Een dubbele garagebox op het gelijkvloers biedt extra opslagmogelijkheden of kan dienen als parkeerplaats. Aan de overkant bevindt zich de openbare parking "Handelsbeurs", wat extra parkeergelegenheid garandeert.

AFRIT
BUS
TREIN
TRAM
VELOSTATION